Cargando...
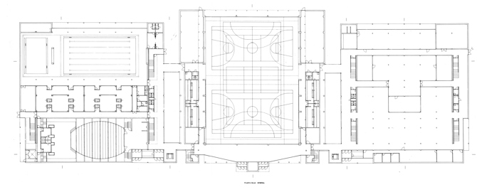
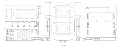
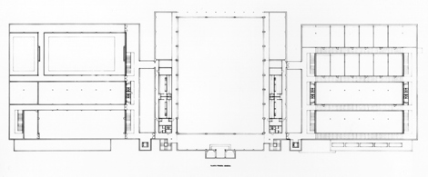
El nuevo Centro Cívico está formado por un polideportivo proyectado por el estudio anteriormente, al que se ha incorporado dos nuevos cuerpos. Uno alberga las actividades culturales y el segundo incluye piscinas y amplía los usos deportivos de la construcción original.
El reto de la propuesta es resolver el problema compositivo que plantea ampliar un edificio acabado, cerrado, completo en sí mismo. Esta primera decisión se zanja mediante la yuxtaposición de dos volúmenes aparentemente iguales que flanquean al existente. La intervención intenta dar respuesta a la diversidad funcional sin alterar la sobriedad exterior –paños de ladrillo perfilados por el color blanco de la chapa de aluminio–.
Información general
Centro Cívico Lakua
AÑO
Opción de visitas
Dirección
c/ Senda de los Echanove,
01010 Gasteiz - Araba
Latitud: 42.85497095
Longitud: -2.696125742
Clasificación
Superficie construida
Colaboradores
Información aportada por
Roberto Ercilla Arquitectura
-
Roberto Ercilla -
Planta primera - Roberto Ercilla -
Planta Baja - Roberto Ercilla -
Roberto Ercilla -
Roberto Ercilla -
Roberto Ercilla
Ubicación
https://content.gnoss.ws/carq/https://content.gnoss.ws/carq//imagenes/Documentos/imgsem/33/33c8/33c8bc1b-9abd-4a01-b539-1c58ba7a116a/4b791dfd-d29c-4de7-bb67-22f56ff292c2.jpg, 0000006717/centro civico lakua.jpg
https://content.gnoss.ws/carq/https://content.gnoss.ws/carq//imagenes/Documentos/imgsem/33/33c8/33c8bc1b-9abd-4a01-b539-1c58ba7a116a/622a1b41-795a-4a2b-8f9b-a2f60777f714.jpg, 0000006717/002-CC_LAKUA.jpg
https://content.gnoss.ws/carq/https://content.gnoss.ws/carq//imagenes/Documentos/imgsem/33/33c8/33c8bc1b-9abd-4a01-b539-1c58ba7a116a/06c6d8db-843a-42a8-865a-b846b7047498.jpg, 0000006717/005-CC_LAKUA.jpg
https://content.gnoss.ws/carq/https://content.gnoss.ws/carq//imagenes/Documentos/imgsem/33/33c8/33c8bc1b-9abd-4a01-b539-1c58ba7a116a/35136207-0eb2-49d7-a1b5-698c5a1c43a0.jpg, 0000006717/012-CC_LAKUA.jpg
https://content.gnoss.ws/carq/https://content.gnoss.ws/carq//imagenes/Documentos/imgsem/33/33c8/33c8bc1b-9abd-4a01-b539-1c58ba7a116a/4db90cb3-c6ce-4328-a175-e6fc84c186ce.jpg, 0000006717/015-CC_LAKUA.jpg
https://content.gnoss.ws/carq/https://content.gnoss.ws/carq//imagenes/Documentos/imgsem/33/33c8/33c8bc1b-9abd-4a01-b539-1c58ba7a116a/7d40a663-9a10-4b0e-abbd-2e7779bb1eb4.jpg, 0000006717/018-CC-LAKUA.jpg
https://content.gnoss.ws/carq/https://content.gnoss.ws/carq//imagenes/Documentos/imgsem/33/33c8/33c8bc1b-9abd-4a01-b539-1c58ba7a116a/0e5cef00-c93a-4000-9c09-88b52fdc41b2.jpg, 0000006717/020-CC-LAKUA.jpg
https://content.gnoss.ws/carq/https://content.gnoss.ws/carq//imagenes/Documentos/imgsem/33/33c8/33c8bc1b-9abd-4a01-b539-1c58ba7a116a/0925448a-e1f5-41d6-8e44-8a1d2a09336b.jpg, 0000006717/024-CC-LAKUA.jpg
https://content.gnoss.ws/carq/https://content.gnoss.ws/carq//imagenes/Documentos/imgsem/33/33c8/33c8bc1b-9abd-4a01-b539-1c58ba7a116a/7241017f-fe42-4d68-90c2-60be6b2c62f7.jpg, 0000006717/029-CC-LAKUA.jpg
https://content.gnoss.ws/carq/https://content.gnoss.ws/carq//imagenes/Documentos/imgsem/33/33c8/33c8bc1b-9abd-4a01-b539-1c58ba7a116a/6088d69f-0456-4d98-ab8e-5d487367ebde.jpg, 0000006717/035-CC_LAKUA.jpg
https://content.gnoss.ws/carq//imagenes/Documentos/imgsem/33/33c8/33c8bc1b-9abd-4a01-b539-1c58ba7a116a/021eeb4a-afe5-4c54-83bb-cbf91f4c6fbe.jpg, 0000006717/CCLakua_PB.jpg
https://content.gnoss.ws/carq//imagenes/Documentos/imgsem/33/33c8/33c8bc1b-9abd-4a01-b539-1c58ba7a116a/83e38182-12d7-4ae9-a809-bbd8d7b44ccb.jpg, 0000006717/CC_LAKUA-P1.jpg
https://content.gnoss.ws/carq//imagenes/Documentos/imgsem/33/33c8/33c8bc1b-9abd-4a01-b539-1c58ba7a116a/0f225922-22fa-43e0-b23c-7c1929aa10e5.jpg, 0000006717/CC-LAKUA-PCubietas negativo.jpg
https://content.gnoss.ws/carq//imagenes/Documentos/imgsem/33/33c8/33c8bc1b-9abd-4a01-b539-1c58ba7a116a/9f56921f-b6bc-41f0-9427-58d478981314.jpg, 0000006717/CC-LAKUA-alzados positivo.jpg
https://content.gnoss.ws/carq//imagenes/Documentos/imgsem/33/33c8/33c8bc1b-9abd-4a01-b539-1c58ba7a116a/ebfb20da-4e68-49e9-b2b2-9731863b66e3.jpg, 0000006717/CCLakua_Seccs.jpg
https://content.gnoss.ws/carq//imagenes/Documentos/imgsem/33/33c8/33c8bc1b-9abd-4a01-b539-1c58ba7a116a/771779b7-da0c-46bd-bd8a-fa7bf3925848.jpg, 0000006717/CC-LAKUA-Perspectiva a.jpg







