Cargando...
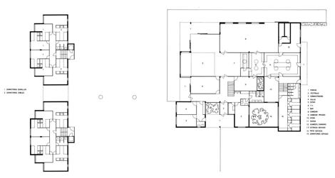
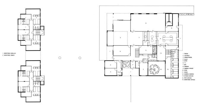
Presenta este colegio una sorprendente solución, dos edificios exentos unidos por un pasillo subterráneo, que facilita la independencia de uso de los mismos: uno público, de relación, y el otro, privado, de descanso y estudio. El carácter de ambos, además, es antagónico. El bloque de residencia, compuesto de dos torres en altura con los dormitorios –donde el arquitecto ha eliminado prácticamente los pasillos– unidas por dos espacios comunes: la biblioteca y el gimnasio, este en la planta superior, a modo de arco de triunfo y con un complejo juego de simetrías. Y el edificio social, de carácter doméstico, horizontal y con pequeños patios, que se extiende por el jardín.
El primero busca las espléndidas vistas hacia la Sierra madrileña y el segundo, en cambio, se recrea en los cercanos espacios abiertos, diseñados como continuidad de las principales estancias, a su vez desarrolladas en terrazas exteriores. Como es habitual en De la Sota, ambos edificios son de una gran austeridad, sin recursos estilísticos evidentes, aunque cercanos al primer Mies.
Información general
Colegio Mayor César Carlos
AÑO
Estado
Obra protegida
Opción de visitas
Dirección
C/ Don Ramón Menéndez Pidal, 3
28040 Madrid - Madrid
Latitud: 40.447513486
Longitud: -3.720105517
Superficie construida
Arquitectos participantes
Colaboradores
Información aportada por
Fundación DOCOMOMO Ibérico
Fundación Alejandro de la Sota
-
Fondo documental Docomomo Ibérico/© Luis Argüelles -
Fundación Alejandro de la Sota -
Fundación Alejandro de la Sota -
Fundación Alejandro de la Sota -
Fundación Alejandro de la Sota -
Fundación Alejandro de la Sota
Ubicación
Itinerarios
https://content.gnoss.ws/carq/https://content.gnoss.ws/carq//imagenes/Documentos/imgsem/6c/6c1a/6c1a4cfb-1f0b-436f-bf40-29829cc4f50b/025918e3-2be8-42fb-b0b5-faf9a8bee839.jpg, 0000011224/colegio mayor cesar carlos.jpg
https://content.gnoss.ws/carq/https://content.gnoss.ws/carq//imagenes/Documentos/imgsem/6c/6c1a/6c1a4cfb-1f0b-436f-bf40-29829cc4f50b/e554da96-4954-43fe-81f1-1efc26432ab4.jpg, 0000011224/67_z_fo_d_17_lg.jpg
https://content.gnoss.ws/carq/https://content.gnoss.ws/carq//imagenes/Documentos/imgsem/6c/6c1a/6c1a4cfb-1f0b-436f-bf40-29829cc4f50b/3b5ab18a-e161-4af8-81b4-efb5f0a0ad95.jpg, 0000011224/67_z_fo_d_42_lg.jpg
https://content.gnoss.ws/carq/https://content.gnoss.ws/carq//imagenes/Documentos/imgsem/6c/6c1a/6c1a4cfb-1f0b-436f-bf40-29829cc4f50b/e10892af-6022-41af-b21a-b4ae53f53e93.jpg, 0000011224/67_z_fo_d_43_lg.jpg
https://content.gnoss.ws/carq/https://content.gnoss.ws/carq//imagenes/Documentos/imgsem/6c/6c1a/6c1a4cfb-1f0b-436f-bf40-29829cc4f50b/7686335f-9297-4144-ac89-450ae2ddf244.jpg, 0000011224/67_z_fo_fe_15_lg.jpg
https://content.gnoss.ws/carq/https://content.gnoss.ws/carq//imagenes/Documentos/imgsem/6c/6c1a/6c1a4cfb-1f0b-436f-bf40-29829cc4f50b/f3558d20-3df4-48f2-a0bf-d5b0c886e7c4.jpg, 0000011224/E_MA_A65_043.jpg
https://content.gnoss.ws/carq/https://content.gnoss.ws/carq//imagenes/Documentos/imgsem/6c/6c1a/6c1a4cfb-1f0b-436f-bf40-29829cc4f50b/00e58017-049d-4e92-b183-0822e5e8ed72.jpg, 0000011224/E_MA_A65_089.jpg
https://content.gnoss.ws/carq/https://content.gnoss.ws/carq//imagenes/Documentos/imgsem/6c/6c1a/6c1a4cfb-1f0b-436f-bf40-29829cc4f50b/100334f1-ac03-40b7-8eb8-404fd0d76bb7.jpg, 0000011224/E_MA_A65_113.jpg
https://content.gnoss.ws/carq//imagenes/Documentos/imgsem/6c/6c1a/6c1a4cfb-1f0b-436f-bf40-29829cc4f50b/dd646561-62a0-4508-a4f9-7fc1efb6e04f.jpg, 0000011224/67_z_va_10_lg.jpg
https://content.gnoss.ws/carq//imagenes/Documentos/imgsem/6c/6c1a/6c1a4cfb-1f0b-436f-bf40-29829cc4f50b/8fcdbb8b-4c54-4dca-bb82-c10b47d830c8.jpg, 0000011224/67_z_cq_17_lg.jpg
https://content.gnoss.ws/carq//imagenes/Documentos/imgsem/6c/6c1a/6c1a4cfb-1f0b-436f-bf40-29829cc4f50b/5207ef9a-4603-43da-85da-db3cf3498946.jpg, 0000011224/67_z_va_6_lg.jpg
https://content.gnoss.ws/carq//imagenes/Documentos/imgsem/6c/6c1a/6c1a4cfb-1f0b-436f-bf40-29829cc4f50b/f21ae3a0-1e6f-4420-9162-c8c9ca1678a5.jpg, 0000011224/67_z_va_9_lg.jpg







