Cargando...
El proyecto es consecuencia de un concurso restringido, convocado por la entidad propietaria en 1970.
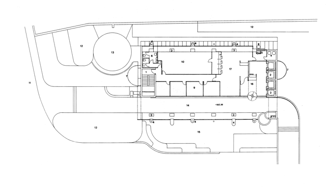
El terreno está situado en el Paseo de la Castellana de Madrid. Al norte es adyacente a la embajada de los Estados Unidos; y al este y sur, a un conjunto de edificios de oficinas. Se proyecta sobre un rectángulo fijo de 15 x 30 m, un prisma de diez plantas sobre el nivel del Paseo de la Castellana y cuatro plantas inferiores.
La planta primera es oficina bancaria; de la dos a la ocho, oficinas del banco; y las plantas nueve y diez alojan el programa de la dirección. Estas dos últimas plantas se cubren con bóveda de cañón. Bajo la planta primera, y bajo el nivel del terreno, existe una planta de aparcamiento de vehículos, abierta a un espacio exterior; bajo ella, tres plantas más contienen los archivos, las cajas y las instalaciones.
Estructuralmente se proyectan soportes en fachada casa 4,50 m. Vigas pretensadas tipo preflex de 15 m de luz y losa armada de 12 cm sobre estas vigas. El arriostramiento se confía a los muros testeros a este y oeste, que contienen a su vez los ascensores, escaleras y conductos. Las características fundamentales del edificio son:
- Gran elasticidad de planta, conseguida mediante la agrupación en los laterales de los elementos fijos, escaleras, ascensores y servicios, así como en la adopción de un módulo general de 0,90 x 0,90 m.
- Aprovechamiento máximo de la luz del día mediante la eliminación de dinteles en huecos y protección de la fachada mediodía del calor solar al colocar delante de ella elementos de luna atérmica.
- Reducción del problema de la pequeña altura libre entre pisos, al llevar los conductos del aire acondicionado por columnas circulares exteriores y por los antepechos.
- Intento de conseguir una ambientación formal y de calor con el conjunto de edificaciones nobles del Paseo de la Castellana, bibliotecas y museos (Prado, etc.), con materiales y sistemas válidos actuales.
- En alzados norte y sur, las carpinterías, los conductos, los antepechos, la bóveda superior y los rótulos laterales se han realizado con aluminio anodizado rojo claro.
- Los muros laterales o testeros se cubren con piedra rosa.
- Interiormente, el tratamiento general es simple y unificado en material y color.
Se mantiene el módulo de 0,90 x 0,90 m en mamparas y divisiones de madera, forradas de lámina mate de PVC color gris beige claro; con el mismo material se forran los soportes, antepechos, cubreinductores, etc. El techo de placas “amstrong” tiene el módulo de 0,90 x 0,60 m. El pavimento general es moqueta de lana, de igual color que las paredes.
Información general
Edificio Bankunión (Sede de la Comisión Europea y Embajada de Irlanda)
AÑO
Opción de visitas
Dirección
p.º Castellana, 46
28046 Madrid - Madrid
Latitud: 40.434213765
Longitud: -3.687857801
Clasificación
Superficie construida
Información aportada por
Servicio Histórico del Colegio Oficial de Arquitectos de Madrid (COAM)
Open House Madrid
Fondo documental DOCOMOMO Ibérico
Ubicación
Itinerarios
https://content.gnoss.ws/carq/https://content.gnoss.ws/carq//imagenes/Documentos/imgsem/b1/b1c6/b1c6ec99-ca22-44d0-8823-c341203cc548/e77f63d8-dd5a-4b44-85a1-58747c26391c.jpg, 0000011477/embajada irlanda.jpg
https://content.gnoss.ws/carq/https://content.gnoss.ws/carq//imagenes/Documentos/imgsem/b1/b1c6/b1c6ec99-ca22-44d0-8823-c341203cc548/eca27ba3-0371-4211-9640-bf484a05cadf.jpg, 0000011477/EdificioCastellana46 DavidSpence OHM25.jpg
https://content.gnoss.ws/carq/https://content.gnoss.ws/carq//imagenes/Documentos/imgsem/b1/b1c6/b1c6ec99-ca22-44d0-8823-c341203cc548/b29203b6-6915-4fd6-848f-588313183227.jpg, 0000011477/EdificioCastellana46 DavidSpence OHM7.jpg
https://content.gnoss.ws/carq/https://content.gnoss.ws/carq//imagenes/Documentos/imgsem/b1/b1c6/b1c6ec99-ca22-44d0-8823-c341203cc548/c408302f-a982-4d54-89d4-5be5aa7f8a53.jpg, 0000011477/EdificioCastellana46 DavidSpence OHM9.jpg
https://content.gnoss.ws/carq/https://content.gnoss.ws/carq//imagenes/Documentos/imgsem/b1/b1c6/b1c6ec99-ca22-44d0-8823-c341203cc548/89f48ed3-80f3-41ac-9049-79aa82abd5d0.jpg, 0000011477/EdificioCastellana46 DavidSpence OHM23.jpg
https://content.gnoss.ws/carq/https://content.gnoss.ws/carq//imagenes/Documentos/imgsem/b1/b1c6/b1c6ec99-ca22-44d0-8823-c341203cc548/ea77b22d-0666-4416-8da8-1f3958822337.jpg, 0000011477/EdificioCastellana46 DavidSpence OHM3.jpg
https://content.gnoss.ws/carq/https://content.gnoss.ws/carq//imagenes/Documentos/imgsem/b1/b1c6/b1c6ec99-ca22-44d0-8823-c341203cc548/fd5be8e9-0880-42a5-aa74-28ddeb25d727.jpg, 0000011477/AMP_MA_A056_02.jpg
https://content.gnoss.ws/carq/https://content.gnoss.ws/carq//imagenes/Documentos/imgsem/b1/b1c6/b1c6ec99-ca22-44d0-8823-c341203cc548/274cb094-37ec-4b3a-9397-ae4449ecad0d.jpg, 0000011477/AMP_MA_A056_03.jpg
https://content.gnoss.ws/carq/https://content.gnoss.ws/carq//imagenes/Documentos/imgsem/b1/b1c6/b1c6ec99-ca22-44d0-8823-c341203cc548/0b07aa99-0462-45b3-a402-712b2df5576c.jpg, 0000011477/AMP_MA_A056_04.jpg
https://content.gnoss.ws/carq/https://content.gnoss.ws/carq//imagenes/Documentos/imgsem/b1/b1c6/b1c6ec99-ca22-44d0-8823-c341203cc548/ec373fac-e031-4ebf-850c-fadb42d4485c.jpg, 0000011477/AMP_MA_A056_05.jpg
https://content.gnoss.ws/carq/https://content.gnoss.ws/carq//imagenes/Documentos/imgsem/b1/b1c6/b1c6ec99-ca22-44d0-8823-c341203cc548/95087615-325b-4820-a98a-c4ad965426e2.jpg, 0000011477/AMP_MA_A056_06.jpg
https://content.gnoss.ws/carq/https://content.gnoss.ws/carq//imagenes/Documentos/imgsem/b1/b1c6/b1c6ec99-ca22-44d0-8823-c341203cc548/6296e633-3329-4ad4-b3c0-a2ce10987cbf.jpg, 0000011477/AMP_MA_A056_09.jpg
https://content.gnoss.ws/carq/https://content.gnoss.ws/carq//imagenes/Documentos/imgsem/b1/b1c6/b1c6ec99-ca22-44d0-8823-c341203cc548/b574c2e7-5d60-4997-93d5-9627e2f467b8.jpg, 0000011477/Edificio Bankunion.jpg
https://content.gnoss.ws/carq//imagenes/Documentos/imgsem/b1/b1c6/b1c6ec99-ca22-44d0-8823-c341203cc548/6cfe8e92-17ce-4224-bbab-a6a0d3636780.png, 0000011477/AMP_MA_A056_07.png
https://content.gnoss.ws/carq//imagenes/Documentos/imgsem/b1/b1c6/b1c6ec99-ca22-44d0-8823-c341203cc548/d835a53e-01e6-4baf-81cc-9bd414c44902.png, 0000011477/AMP_MA_A056_08.png



