Cargando...
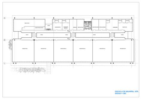
El edificio se organiza a lo largo de un jardín interior y se establecen cuatro zonas a distintos niveles destinadas a departamentos, aulas, talleres de diseño y talleres de construcción. En volumen aparte se sitúan los servicios administrativos que enlazan a través de una galería transparente con el edificio principal.
La cubierta espacial de 20,90 m de luz permite por su diafanidad adaptar el edificio a planteamientos pedagógicos siempre cambiantes.
Información general
Escuela de Arquitectura de la Universidad de Navarra
AÑO
Estado
Obra protegida
Opción de visitas
Dirección
cr. de la Universidad, s/n
31080 Pamplona - Navarra
Latitud: 42.799231
Longitud: -1.658013
Clasificación
Sistema constructivo
Estructura de hormigon blanco. Cubierta esterea de perfiles C laminado en frío
Superficie construida
Colaboradores
José Ramón Delgado (Aparejador)
José María Jiménez Urrutia (Arquitecto)
Estudios de arquitectura participantes
Información aportada por
Aguinaga y Asociados Arquitectos
-
Planta alta - Aguinaga y Asociados Arquitectos -
Pedro Pegenaute, vía Fondo documental DOCOMOMO Ibérico
Ubicación
Itinerarios
https://content.gnoss.ws/carq/https://content.gnoss.ws/carq//imagenes/Documentos/imgsem/53/53af/53af61e7-bcdc-4207-9a96-e2c2e2333dc2/b60f1ca2-a136-410b-be20-e222d1e60b03.jpg, 0000017462/346T7878.JPG
https://content.gnoss.ws/carq/https://content.gnoss.ws/carq//imagenes/Documentos/imgsem/53/53af/53af61e7-bcdc-4207-9a96-e2c2e2333dc2/6270f9b1-b909-4ef4-ab6f-ea8fc66ae10a.jpg, 0000017462/ImageServlet.jpg
https://content.gnoss.ws/carq/https://content.gnoss.ws/carq//imagenes/Documentos/imgsem/53/53af/53af61e7-bcdc-4207-9a96-e2c2e2333dc2/40205e13-d742-4678-9b00-0890490e5845.jpg, 0000017462/346T7886.JPG
https://content.gnoss.ws/carq//imagenes/Documentos/imgsem/53/53af/53af61e7-bcdc-4207-9a96-e2c2e2333dc2/5e5ef384-936e-4b90-86aa-860175c82be3.jpg, 0000017462/Seccion_300.jpg
https://content.gnoss.ws/carq//imagenes/Documentos/imgsem/53/53af/53af61e7-bcdc-4207-9a96-e2c2e2333dc2/f9b26f35-820c-4bf2-946f-ca4d908f1c53.jpg, 0000017462/Planta_alta_300.jpg
https://content.gnoss.ws/carq//imagenes/Documentos/imgsem/53/53af/53af61e7-bcdc-4207-9a96-e2c2e2333dc2/6564952b-3ef9-4895-b0d2-4a3ed96a9b60.jpg, 0000017462/Planta_baja_300.jpg




