Cargando...
Habitatge Jove Caldes es un edificio de ocho viviendas dotacionales para jóvenes inspirado en la estrategia ATRI.city, una iniciativa concebida por un colectivo de urbanistas, juristas, arquitectos y economistas que busca mitigar los efectos de la gentrificación. El proyecto inserta vivienda asequible en un barrio consolidado, caminable y bien equipado de Caldes de Montbui, impulsando un modelo urbano más inclusivo, equilibrado y sostenible. Promovido por el Ayuntamiento, el edificio combina sostenibilidad, innovación técnica y participación ciudadana para ofrecer una alternativa real y replicable al problema del acceso a la vivienda juvenil.
En el plano constructivo, el proyecto evita el uso de materiales altamente contaminantes como el hormigón mediante sistemas de prefabricación modular, ligera y en seco, que permiten una producción más rápida, económica y ecológica. La construcción se basa en la reutilización de contenedores marítimos que se apilan formando núcleos estructurales, que albergan baños y dormitorios, soportan forjados de madera contralaminada (CLT), de modo que las zonas de estar disfrutan de crujías más amplias y flexibles. Los contenedores llegan a la obra ya terminados, provistos de revestimientos de fachada ventilada en madera termotratada, carpinterías exteriores, acabados interiores e instalaciones, lo que reduce de manera considerable los plazos de entrega y los costes de ejecución.
La estructura resultante, de tres plantas, se acopla en menos de una semana gracias a un sistema de juntas secas y reversibles que posibilitan su desmontaje sin necesidad de derribo, reduciendo significativamente la generación de residuos. En materia energética, el edificio alcanza altos niveles de eficiencia gracias a sus sistemas de ventilación y calefacción semi-pasivos, apoyados en aerotermia, que permiten mantener el confort térmico con un consumo casi nulo.
Más allá del proceso constructivo, el proyecto destaca por su innovación social, siendo fruto de un proceso participativo en el que decenas de jóvenes y vecinos del barrio contribuyeron al diseño final. A lo largo de varias sesiones de codiseño, los participantes toman decisiones conjuntas como la introducción de balcones —lección aprendida del confinamiento— o la conversión de una de las viviendas de planta baja en local comunitario, destinado a usos colectivos. También intervienen en la definición de los criterios de asignación de las viviendas y participan en talleres de autoconstrucción asistida, completando los acabados del local común y dando forma a su jardín.
Todo el proceso, documentado y publicado en código abierto en la web habitatgejovecaldes.cat, abre la puerta a que la experiencia pueda replicarse y escalarse, contribuyendo a redefinir los modelos de vivienda pública asequible en clave ecológica y comunitaria.
Información general
HABITATGE JOVE CALDES - Viviendas para jóvenes en Caldes de Montbui
AÑO
Dirección
Carrer de Granollers, 34
08140 Caldes de Montbui - Barcelona -Caldes de Montbui
Latitud: 41.633363825
Longitud: 2.1711883387
Clasificación
Materiales construcción
Sistema constructivo
Reutilización de contenedores marítimos
Superficie construida
Colaboradores
Adrià Goula y Straddle3 (Fotografía)
Ajuntament de Caldes de Montbui (Empresa promotora)
Societat Orgànica (Consultoría de sostenibilidad)
Información aportada por
Straddle3
-
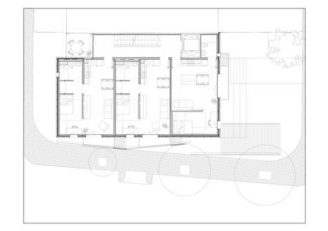
Planta Tipo - Straddle3 -
Sección - Straddle3 -
Vista exterior - Adrià Goula
Ubicación
https://content.gnoss.ws/carq/https://content.gnoss.ws/carq//imagenes/Documentos/imgsem/d7/d733/d733c10b-4ae9-4bff-80be-ce219e8e34c7/1d0031b7-d3ef-4685-bf21-ce2ee1630eac.jpg, 0000107065/01_Exterior__� Adri� Goula.jpg
https://content.gnoss.ws/carq/https://content.gnoss.ws/carq//imagenes/Documentos/imgsem/d7/d733/d733c10b-4ae9-4bff-80be-ce219e8e34c7/b6d10d3f-7706-46ae-93ed-b44106b26cdb.jpg, 0000107065/04_Exterior__� Adri� Goula.jpg
https://content.gnoss.ws/carq/https://content.gnoss.ws/carq//imagenes/Documentos/imgsem/d7/d733/d733c10b-4ae9-4bff-80be-ce219e8e34c7/b574f89f-db2b-4ab8-946e-8e305cb68acf.jpg, 0000107065/05_Exterior__� Adri� Goula.jpg
https://content.gnoss.ws/carq/https://content.gnoss.ws/carq//imagenes/Documentos/imgsem/d7/d733/d733c10b-4ae9-4bff-80be-ce219e8e34c7/8b234579-912f-4a0a-a493-9c2886c63d54.jpg, 0000107065/07_Foto proceso_� Straddle3.jpg
https://content.gnoss.ws/carq/https://content.gnoss.ws/carq//imagenes/Documentos/imgsem/d7/d733/d733c10b-4ae9-4bff-80be-ce219e8e34c7/23ec2402-eec0-4861-8a62-ad2c6eefc089.jpg, 0000107065/10_Exterior__� Adri� Goula.jpg
https://content.gnoss.ws/carq/https://content.gnoss.ws/carq//imagenes/Documentos/imgsem/d7/d733/d733c10b-4ae9-4bff-80be-ce219e8e34c7/8bbfc078-b99c-4866-b117-5924b3a6008a.jpg, 0000107065/07_Interior__� Adri� Goula.jpg
https://content.gnoss.ws/carq/https://content.gnoss.ws/carq//imagenes/Documentos/imgsem/d7/d733/d733c10b-4ae9-4bff-80be-ce219e8e34c7/788be927-33d6-4479-973a-1e1b4543c303.jpg, 0000107065/09_Interior__� Adri� Goula.jpg
https://content.gnoss.ws/carq/https://content.gnoss.ws/carq//imagenes/Documentos/imgsem/d7/d733/d733c10b-4ae9-4bff-80be-ce219e8e34c7/b4fd903c-8a18-4c58-80cf-8f5f2864f556.jpg, 0000107065/06_Interior__� Adri� Goula.jpg
https://content.gnoss.ws/carq//imagenes/Documentos/imgsem/d7/d733/d733c10b-4ae9-4bff-80be-ce219e8e34c7/b0444ea4-94c5-4bce-a32f-a2545e1fe189.jpg, 0000107065/03_Secci�n.jpg
https://content.gnoss.ws/carq//imagenes/Documentos/imgsem/d7/d733/d733c10b-4ae9-4bff-80be-ce219e8e34c7/3a3a1c05-143a-4632-8b42-70c17bf0ae6b.jpg, 0000107065/02_Planta tipo.jpg
https://content.gnoss.ws/carq//imagenes/Documentos/imgsem/d7/d733/d733c10b-4ae9-4bff-80be-ce219e8e34c7/7ea6485f-5359-4e33-b9b5-cb2ebb659812.jpg, 0000107065/01_Planta baja.jpg




