Cargando...
El I.E.S. Mónico Sánchez se halla en el borde este del casco urbano de Piedrabuena, un municipio incluido en la comarca natural de Los Montes de Ciudad Real, cerca ya del límite con el Campo de Calatrava. Se sitúa a 21 km al noroeste de la capital provincial. El término municipal está atravesado, de este a oeste, por la carretera nacional N-430, además de por la carretera autonómica CM-4135 de norte a sur. El edificio se ubica en una zona de expansión de la localidad, adonde se han instalado otras dotaciones y equipamientos, tales como un pabellón polideportivo y uno multifuncional.
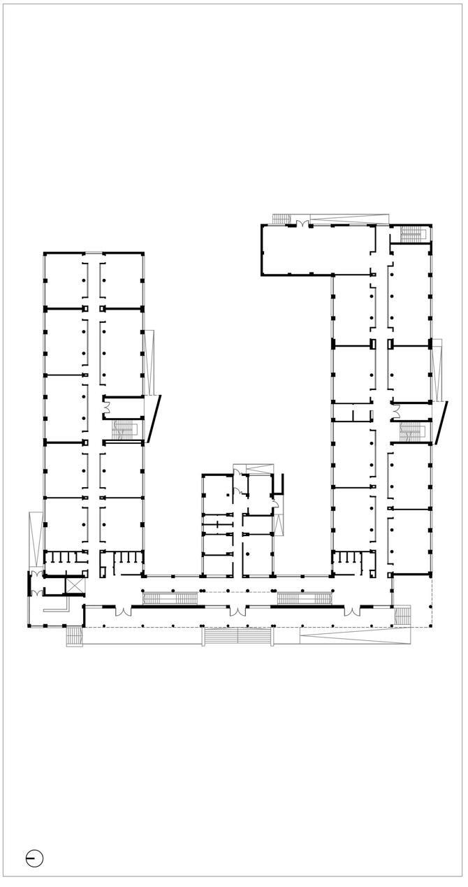
El edificio original presenta una tipología de peine en la que cada una de sus tres púas, orientadas en dirección este-oeste y de dos plantas, es de distinta longitud. La norte (mayor) y la sur (mediana) se destinan a las aulas en una distribución de pasillo central al que recaen los accesos a las mismas. La central (pequeña) se reserva para la administración. El elemento que cose las tres piezas opera como fachada, con un gran pórtico longitudinal al exterior y un vestíbulo al interior, ambos de doble altura. en éste último se alza una escalera abierta que conduce a la galería superior.
La estructura del edificio es de hormigón armado cuya modulación marca el tamaño de las aulas. El pórtico de fachada se resuelve, sin embargo, con estructura metálica pintada de gris y sus acabados exteriores con un enfoscado gris claro en contraste con los de las púas del peine, en ladrillo caravista rojo. Los huecos presentan carpinterías metálicas y lamas blancas. Destaca el gesto, a mitad de los alzados, de grandes muros de hormigón visto, oblicuos, que marcan los núcleos de comunicación vertical. La posterior ampliación respetó esta materialidad y consistió en prolongar y doblar hacia el norte la pieza sur.
Una de las condiciones más llamativas del edificio es su situación sobre una suave ladera al fondo este de la parcela, liberando un amplio espacio en su frente oeste que se aprovecha para incorporar un jardín francés a la derecha de la entrada y una gran escalinata central de subida a la plataforma construida como basamento de la construcción, asimismo accesible por rampas. Este emplazamiento convierte el edificio en una atalaya desde la que se divisa el municipio. Contrariamente, la parte posterior se halla deprimida respecto al viario colindante del que se protege mediante taludes.
Información general
IES Mónico Sánchez en Piedrabuena
AÑO
Opción de visitas
Dirección
P.º de Castilla la Mancha, 2
13100 Piedrabuena - Ciudad Real -Piedrabuena
Latitud: 39.035342205
Longitud: -4.167950609
Clasificación
Superficie construida
Arquitectos participantes
Colaboradores
Margarita García del Castillo Iñesta (Arquitecta de ampliación, año 2011)
Antonio Arrieta Camacho (Arquitecto técnico director)
Eusebio García del Castillo Crespo (Arquitecto técnico director (ampliación 2011))
Información aportada por
Miradas Situadas Arquitectura de Mujer en España desde Perspectivas Periféricas, 1978-2008 (NAM)
Ubicación
Itinerarios
https://content.gnoss.ws/carq/https://content.gnoss.ws/carq//imagenes/Documentos/imgsem/42/421c/421cf0fa-09d2-4ac1-bf92-2a682edd63c9/c15c3d75-7df5-47cc-9ccc-1a2726edb491.jpg, 0000109021/i01.jpg
https://content.gnoss.ws/carq/https://content.gnoss.ws/carq//imagenes/Documentos/imgsem/42/421c/421cf0fa-09d2-4ac1-bf92-2a682edd63c9/63f0d3b9-a950-49a6-b5e0-d32f3d791da2.jpg, 0000109021/i00.jpg
https://content.gnoss.ws/carq//imagenes/Documentos/imgsem/42/421c/421cf0fa-09d2-4ac1-bf92-2a682edd63c9/9a05d4e4-c285-40d4-be8e-0f1b6841fece.jpg, 0000109021/p00.jpg



