Cargando...
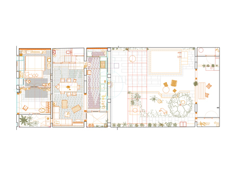
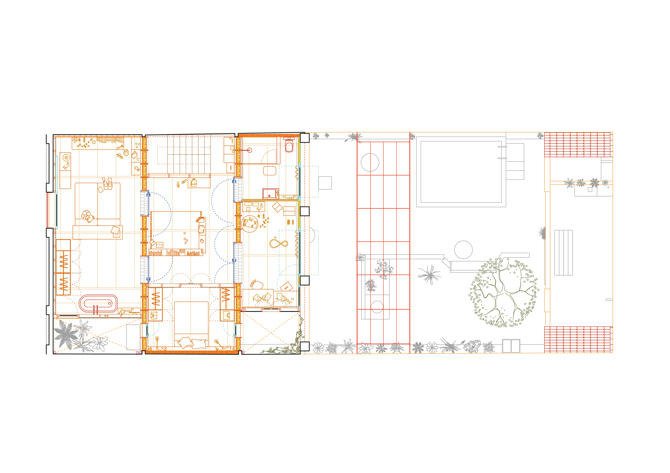
Este proyecto de ampliación y reforma se sitúa en un barrio residencial de Palma con casas de planta baja y patio. La necesidad de ampliar la vivienda original en planta baja, manteniendo la estructura de muros de carga originales, hace necesario adoptar una solución de estructura ligera como la madera.
Desde un inicio, nos planteamos el proyecto como una investigación en dos líneas paralelas. Por una parte, las posibilidades de la prefabricación de elementos de madera con corte por control numérico (CNC) y, por otra, una investigación sobre las artesanías aún vivas en la isla, como el barro y el marés.
Partimos de una estructura autónoma y descontextualizada, anclada a una “base” o “preexistencia” para la cual “ideamos” y fabricamos un sistema prefabricado de madera, partiendo de paneles de contrachapado de chopo de 244x122 cm. Aquí la estructura nos brinda la ocasión para investigar y probar un sistema estructural de prefabricación de madera que utiliza el lenguaje propio de su proceso de fabricación.
Conjugando los elementos de este sistema definido por las capacidades del corte CNC, este sistema sirve como punto de partida y el cual puede ser reproducido en otro tipo de edificaciones.
Información general
Plywood House
AÑO
Opción de visitas
Dirección
c/ Bellpuig, 11
07014 Palma - Illes Balears
Latitud: 39.572785648
Longitud: 2.6306800527
Clasificación
Sistema constructivo
Estructura portante de madera prefabricada y muros existentes de piedra de marés.
Superficie construida
Estudios de arquitectura participantes
Información aportada por
Feina Studio
-
Planta baja - Feina -
Planta primera - Feina -
Luis Díaz Díaz
Ubicación
Itinerarios
https://content.gnoss.ws/carq/https://content.gnoss.ws/carq//imagenes/Documentos/imgsem/df/df13/df131cce-9221-42ec-84c1-41b06c179c5d/8010cf2c-a0cb-4ba1-a312-607a7eda8b9c.jpg, 0000004897/PlywoodHouse_1.jpg
https://content.gnoss.ws/carq/https://content.gnoss.ws/carq//imagenes/Documentos/imgsem/df/df13/df131cce-9221-42ec-84c1-41b06c179c5d/d42d6152-4168-4f61-9112-62b5150ac240.jpg, 0000004897/PlywoodHouse_2.jpg
https://content.gnoss.ws/carq/https://content.gnoss.ws/carq//imagenes/Documentos/imgsem/df/df13/df131cce-9221-42ec-84c1-41b06c179c5d/a65b6b74-f557-45b8-867b-47a23de3b2bb.jpg, 0000004897/PlywoodHouse_3.jpg
https://content.gnoss.ws/carq/https://content.gnoss.ws/carq//imagenes/Documentos/imgsem/df/df13/df131cce-9221-42ec-84c1-41b06c179c5d/e079394f-44b9-44c5-8707-eb16b246928d.jpg, 0000004897/PlywoodHouse_4.jpg
https://content.gnoss.ws/carq/https://content.gnoss.ws/carq//imagenes/Documentos/imgsem/df/df13/df131cce-9221-42ec-84c1-41b06c179c5d/29cd2434-7e83-4865-80f3-3f2c50fb33f3.jpg, 0000004897/PlywoodHouse_5.jpg
https://content.gnoss.ws/carq/https://content.gnoss.ws/carq//imagenes/Documentos/imgsem/df/df13/df131cce-9221-42ec-84c1-41b06c179c5d/c1d5d74a-5feb-47a0-b5e5-62bb42a8e262.jpg, 0000004897/PlywoodHouse_6.jpg
https://content.gnoss.ws/carq/https://content.gnoss.ws/carq//imagenes/Documentos/imgsem/df/df13/df131cce-9221-42ec-84c1-41b06c179c5d/9f746ce7-1fc7-4e6f-a791-0ef339d5a5fe.jpg, 0000004897/PlywoodHouse_7.jpg
https://content.gnoss.ws/carq/https://content.gnoss.ws/carq//imagenes/Documentos/imgsem/df/df13/df131cce-9221-42ec-84c1-41b06c179c5d/2eac22bf-31a5-4dfb-9c81-0ecdc3f91cd3.jpg, 0000004897/PlywoodHouse_8.jpg
https://content.gnoss.ws/carq/https://content.gnoss.ws/carq//imagenes/Documentos/imgsem/df/df13/df131cce-9221-42ec-84c1-41b06c179c5d/e7a6fdb2-e6b9-49ce-9617-28e0b3f976ab.jpg, 0000004897/IMG_1973.JPG
https://content.gnoss.ws/carq/https://content.gnoss.ws/carq//imagenes/Documentos/imgsem/df/df13/df131cce-9221-42ec-84c1-41b06c179c5d/f06c7008-4f76-4fef-9081-4fb4efd986c3.jpg, 0000004897/PANEL1.jpg
https://content.gnoss.ws/carq/https://content.gnoss.ws/carq//imagenes/Documentos/imgsem/df/df13/df131cce-9221-42ec-84c1-41b06c179c5d/a2ad69b5-eab7-4d13-b1b6-343eb49ca6c7.jpg, 0000004897/_MG_2190_low.jpg
https://content.gnoss.ws/carq/https://content.gnoss.ws/carq//imagenes/Documentos/imgsem/df/df13/df131cce-9221-42ec-84c1-41b06c179c5d/3ecc6b25-e41b-48d5-bc18-93de470addb3.jpg, 0000004897/_MG_2201_low.jpg
https://content.gnoss.ws/carq/https://content.gnoss.ws/carq//imagenes/Documentos/imgsem/df/df13/df131cce-9221-42ec-84c1-41b06c179c5d/838ebe0e-ee25-46fe-9ff4-a8501c0a22da.jpg, 0000004897/_MG_1973_low.jpg
https://content.gnoss.ws/carq/https://content.gnoss.ws/carq//imagenes/Documentos/imgsem/df/df13/df131cce-9221-42ec-84c1-41b06c179c5d/7048f51f-811e-46b8-bc56-71d69dba80cf.jpg, 0000004897/2015-08-17 14.06.57.jpg
https://content.gnoss.ws/carq/https://content.gnoss.ws/carq//imagenes/Documentos/imgsem/df/df13/df131cce-9221-42ec-84c1-41b06c179c5d/0264194c-3d44-4c50-972d-fc508690fc51.jpg, 0000004897/2016-01-08 09.22.26.jpg
https://content.gnoss.ws/carq/https://content.gnoss.ws/carq//imagenes/Documentos/imgsem/df/df13/df131cce-9221-42ec-84c1-41b06c179c5d/dbaa3833-b23f-4624-9801-f21cdf6aca8c.jpg, 0000004897/2015-11-04 09.26.02.jpg
https://content.gnoss.ws/carq//imagenes/Documentos/imgsem/df/df13/df131cce-9221-42ec-84c1-41b06c179c5d/5afdf966-52e8-40ed-91eb-e244849614ca.jpg, 0000004897/A4_1.100 P1.jpg
https://content.gnoss.ws/carq//imagenes/Documentos/imgsem/df/df13/df131cce-9221-42ec-84c1-41b06c179c5d/acaa7dbc-64c7-485f-a894-0a63acef31cc.jpg, 0000004897/A4_1.100 PB.jpg
https://content.gnoss.ws/carq//imagenes/Documentos/imgsem/df/df13/df131cce-9221-42ec-84c1-41b06c179c5d/daefc1ff-a535-41b8-86e9-ae742e4b3b17.jpg, 0000004897/A4_1.100 SECCION.jpg




