Cargando...
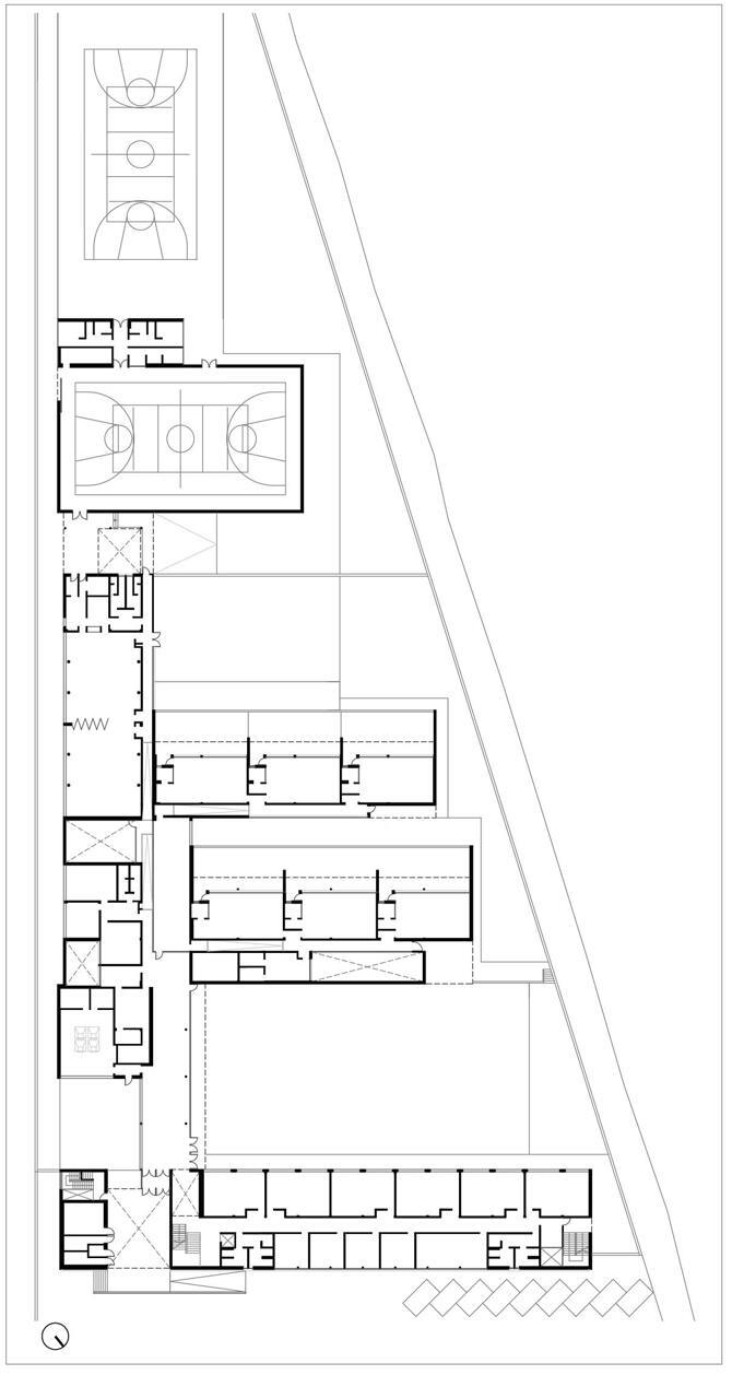
El colegio se sitúa en el límite norte de Illescas (Toledo), en una parcela de más de una hectárea que actúa como transición entre el tejido residencial y el paisaje agrícola. El solar, de geometría triangular y topografía prácticamente llana, tiene un único acceso por una calle situada al noreste. El terreno estaba ocupado mayoritariamente por olivos, elemento que se conserva e integra como trama estructural vegetal del proyecto. La edificación no se impone sobre el lugar, sino que se inserta entre la arboleda, estableciendo una relación directa con el exterior. La disposición en pabellones abiertos al suroeste y la secuencia de patios intermedios favorecen el soleamiento, la ventilación cruzada y el contacto cotidiano del alumnado con el entorno.
El proyecto desarrolla un colegio público, de infantil y primaria, organizado mediante una tipología en peine. Un cuerpo longitudinal perpendicular a la calle enlaza cuatro módulos transversales. El primero, de dos alturas, alberga las aulas de primaria; su extremo se fractura generando un gran umbral que articula el acceso y la biblioteca, permitiendo su uso independiente. Dos pabellones posteriores, en una sola planta, acogen educación infantil en relación directa con el comedor, minimizando recorridos. El último módulo corresponde al gimnasio, vinculado a la pista deportiva exterior. La organización distingue áreas docentes, administrativas y espacios comunes, con trazas claras que facilitan el uso diario, la seguridad infantil y las futuras ampliaciones.
El edificio se resuelve con sistemas constructivos robustos y de bajo mantenimiento, adecuados al uso escolar. La envolvente combina paños continuos de fábrica de ladrillo caravista en tonos claros a la que se superpone mallas metálicas para el control solar. Las carpinterías metálicas de color granate y modulación regular garantizan iluminación homogénea en las aulas. El acceso se subraya mediante un gran umbral retranqueado y pintado en naranja intenso, configurado como espacio de acogida intermedio cubierto entre calle e interior, que actúa como referencia visual del conjunto. La estructura modular permite la seriación de aulas y futuras ampliaciones, integrando patios, porches y corredores como parte de la estrategia ambiental pasiva.
La propuesta rehúye gestos formales o soluciones expresivas, más allá del gran umbral que señala el acceso al centro. La ausencia de espacios superfluos responde a una ética funcional orientada al bienestar y al control del entorno por parte del alumnado, especialmente el infantil. El colegio se entiende como un sistema de pabellones permeables donde el paisaje agrícola —materializado en la presencia de los olivos— se incorpora como parte activa de la experiencia educativa. Más que un objeto autónomo, el edificio funciona como una infraestructura educativa que organiza relaciones entre aprendizaje, cuidados y territorio.
Información general
CEIP Clara Campoamor en Illescas
AÑO
Opción de visitas
Dirección
C/ Pedro Almodóvar, 67
45200 Illescas - Toledo -Illescas
Latitud: 40.138034373
Longitud: -3.856188064
Clasificación
Superficie construida
Arquitectos participantes
Información aportada por
Información aportada por: Miradas Situadas. Arquitectura de Mujer en España desde Perspectivas Periféricas, 1978-2008 (NAM)
-
PÉREZ GONZÁLEZ, Fernando; RUIZ SÁNCHEZ, Mar (coords.). 25 años de arquitectura educativa en Castilla-La Mancha. Toledo: Consejería de Educación, Cultura y Deportes, 2025, pp. 198199.
Ubicación
Itinerarios
https://content.gnoss.ws/carq/https://content.gnoss.ws/carq//imagenes/Documentos/imgsem/ec/ec10/ec1041dd-0489-4ecc-8e2e-69d7269bdb54/d9e349a2-628f-473b-ba93-d138188e20cb.jpg, 0000109061/i00.jpg
https://content.gnoss.ws/carq/https://content.gnoss.ws/carq//imagenes/Documentos/imgsem/ec/ec10/ec1041dd-0489-4ecc-8e2e-69d7269bdb54/399da0ac-2dc9-48b4-9c6c-3feb458f7684.jpg, 0000109061/i01.jpg
https://content.gnoss.ws/carq/https://content.gnoss.ws/carq//imagenes/Documentos/imgsem/ec/ec10/ec1041dd-0489-4ecc-8e2e-69d7269bdb54/b2f6cee6-5dab-4d5f-8768-6bad58c07c77.jpg, 0000109061/i02.jpg
https://content.gnoss.ws/carq/https://content.gnoss.ws/carq//imagenes/Documentos/imgsem/ec/ec10/ec1041dd-0489-4ecc-8e2e-69d7269bdb54/3e1c9280-62d5-42b5-aa04-5f08ae4808bf.jpg, 0000109061/i03.jpg
https://content.gnoss.ws/carq//imagenes/Documentos/imgsem/ec/ec10/ec1041dd-0489-4ecc-8e2e-69d7269bdb54/ab03689b-d98f-42e6-b899-3aa47cc77e7e.jpg, 0000109061/p00.jpg




